Créer un logement T4 dans un ancien atelier de menuiserie, tout en optimisant chaque mètre carré disponible : c’est le défi relevé par Aurélie, élève en cours de formation HOMER NINJA au sein de l’école HOME. Sa mission ? Transformer un ancien atelier de menuisier de 70 m² au sol sur 2 niveaux pour en faire l’habitation principale de toute une famille.
Dans ce cas pratique, découvrez toutes les étapes clés pour transformer un ancien atelier de menuisier en habitation principale, depuis l’analyse des besoins des propriétaires jusqu’à la conception d’un avant-projet détaillé. Inspirez-vous d’un projet concret pour optimiser, rénover et valoriser vos propres projets de rénovation !


© Perspectives d’Aurélie Leriche, élève architecte d’intérieur formée à l’École HOME
Analyse des besoins et des envies des propriétaires pour transformer un ancien atelier de menuisier en habitation
Direction Pierreville, dans la Manche. C’est ici que nos propriétaires ont fait l’acquisition d’une propriété de 1800 m2 en pleine campagne comprenant une habitation de 40 m2 (logement actuel des propriétaires), un ancien atelier de menuisier de 70 m2 au sol, sur 2 niveaux et un garage de 51 m2 sur 2 niveaux également.
Le projet d’optimisation d’espace se concentre aujourd’hui sur la partie de l’ancien atelier de menuiserie qui a pour but de devenir l’habitation principale des clients d’Aurélie : un couple, leur fils d’un an et 2 animaux domestiques (un chat et un chien).
Objectif : faire de cet espace de 70 m2 un logement de type 4, comprenant 3 chambres et un espace bureau sur 2 niveaux de vie.

© Perspectives d’Aurélie Leriche, élève architecte d’intérieur formée à l’École HOME
L’ancien atelier, jamais transformé en habitation, se compose de deux plateaux bruts à aménager entièrement, de l’implantation des cloisons à la création d’un escalier. Le projet présente toutefois certaines contraintes techniques, notamment l’impossibilité de percer la dalle en béton (constituée de poutrelles) le long des murs porteurs, ainsi que la nécessité de faire remonter jusqu’au toit deux tuyaux d’évacuation reliés à la fosse.
Les attentes du couple pour leur futur foyer sont claires :
- Condamner les ouvertures existantes avec le garage et leur logement actuel.
- Créer une habitation simple, chaleureuse et pratique dans laquelle leur fils pourra grandir en toute sécurité.
- Aménager une entrée avec du rangement et un petit banc.
- Concevoir une cuisine sans meubles hauts et sans coin repas.
- Prévoir 3 chambres dont une chambre parentale et une chambre évolutive pour le fils du couple + un espace bureau à l’étage de préférence.
- Créer 2 espaces WC au RDC et à l’étage.
- Concevoir un escalier sécurisé qui valorise les fenêtres fixes s’étendant du rez-de-chaussée à l’étage.

Guide HOME gratuit
Téléchargez le guide H.O.M.E
10 questions à se poser pour réussir son projet et garantir 100% de satisfaction à vos clients !
Les solutions proposées par notre élève architecte d’intérieur formée à la méthodologie HOME
Pour répondre aux attentes des propriétaires tout en respectant les contraintes de cet atelier de 70 m², Aurélie a proposé trois avant-projets sommaires. Chaque proposition mise sur l’optimisation de l’espace, la fluidité de circulation, et la création d’un logement confortable, chaleureux et sécurisé.
Voici le plan d’état des lieux initial :



© Perspectives d’Aurélie Leriche, élève architecte d’intérieur formée à l’École HOME
Place maintenant au Tour d’horizon des solutions imaginées.
Premier avant-projet : escalier 2 quart tournant et grande arrière-cuisine


© Perspectives d’Aurélie Leriche, élève architecte d’intérieur formée à l’École HOME
Le premier projet présenté par Aurélie propose les aménagements suivants :
- La présence de deux WC indépendants, un à chaque niveau.
- Une grande arrière-cuisine avec zone de stockage.
- Une cuisine ouverte avec îlot central pour une utilisation en rangement et plan de travail.
- Un grand dressing dans la chambre parentale.
- Un espace bureau sur le palier.
Parmi les points forts de ce projet, on retient une salle de bain fonctionnelle, des chambres lumineuses, une faisabilité technique facilitée, un escalier qui laisse entrer la lumière et un coin lecture dans la chambre parentale.
Côté inconvénients, une arrière-cuisine toute en longueur où l’espace nécessaire pour la circulation ne peut pas être utilisé pour du rangement, un conflit de portes WC et entrée et une cuisine totalement ouverte sur le reste de la pièce à vivre (odeurs).
Deuxième avant-projet : escalier 2 quart tournant et cuisine en L avec verrière


© Perspectives d’Aurélie Leriche, élève architecte d’intérieur formée à l’École HOME
Le deuxième projet imaginé par Aurélie mise sur :
- Une cuisine en L semi-séparée de la pièce de vie par une verrière.
- Une grande entrée avec rangement et espace pour le chien.
- Une buanderie à l’étage pour éviter les vas et viens entre le RDC et le R+1.
- Des placards dressing dans chaque chambre.
Parmi les points forts de ce projet, on apprécie le cycle du linge pensé à l’étage pour optimiser les déplacements, le télescope devant un velux pour répondre à la demande du propriétaire, l’escalier qui laisse entrer la lumière dans tout le RDC.
En revanche, on note l’absence d’intimité des WC du RDC et des WC dans la salle de bain à l’étage, un petit cellier avec moins de rangement et une intimité non assurée dans la salle de bain à cause de la fenêtre près du sol. Côté technique, cet avant-projet sommaire nécessite de déplacer les gaines électriques actuelles qui sortent du sol de la cuisine et de faire venir arrivée et évacuation d’eau jusqu’à la salle de bain.
Troisième avant-projet : escalier quart tournant, cuisine en U et salon modulable


© Perspectives d’Aurélie Leriche, élève architecte d’intérieur formée à l’École HOME
Le troisième projet proposé par Aurélie s’oriente vers :
- Une entrée semi-fermée avec un SAS dehors/dedans.
- Une arrière-cuisine optimisée pour le rangement.
- Une cuisine en U où tout est à portée de main.
- Des WC isolés au RDC et des WC séparés à l’étage.
- Un espace bureau isolé.
- Une grande chambre parentale avec dressing.
Parmi les points forts de cette solution, on retient une banquette sur mesure et modulable dans le salon pour des parties de jeux entre amis ou des moments de lecture ou de détente et la salle de bain dotée d’éléments plus larges, notamment une double vasque (non demandée) qui pourra être utile quand le fils sera plus grand et que la famille se retrouvera en même temps dans la salle de bain.
Côté limites, l’escalier tourne contre les fenêtres ce qui peut gêner en termes de luminosité, une cuisine ouverte sur la pièce de vie (odeurs), une baignoire sous pente qui ne peut s’utiliser qu’en position assise ou allongée.
Côté technique, cette proposition impose de déplacer les gaines électriques actuelles qui sortent du sol de la cuisine. On constate également une mauvaise isolation phonique au niveau de la porte à galandage des WC du RDC.
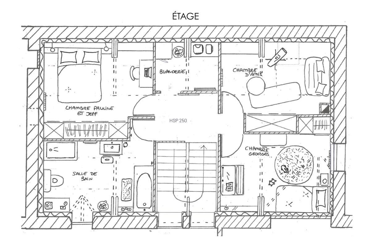
Du concept à la concrétisation : l’avant-projet détaillé de cet ancien atelier de menuisier transformé en T4 pour l’habitation principale d’une famille
La présentation des 3 avant-projets sommaire a entraîné de nombreuses réflexions. Le projet définitif porte sur un mix des 3 propositions pour répondre à l’ensemble des besoins du couple.


© Perspectives d’Aurélie Leriche, élève architecte d’intérieur formée à l’École HOME
Voici les grandes lignes de l’aménagement validé pour le RDC :
- Une entrée fonctionnelle avec rangement, banc et dépose tout. Entrée complètement fermée par une verrière et une porte vitrée pour servir de sas de nettoyage du chien de la famille.
- Des WC isolés comprenant une niche avec étagères.
- Une buanderie optimisée avec meuble sur mesure pour accueillir le lave-linge et le sèche-linge, mais aussi le panier qui recevra le linge sale directement via la trappe de la salle de bain au R+1.
- Une cuisine ouverte en U avec un espace > 120 cm entre les éléments pour éviter l’effet couloir. Pas de meuble haut excepté la colonne four et le frigo.
- Un escalier 2 quarts tournants non habillé pour mettre en valeur les grandes baies vitrées.
- Un salon avec niche aménagée en étagères pour les livres et la décoration.
À l’étage, voici les astuces d’optimisation d’espace pensées par Aurélie et validées par le couple :
- Un emplacement de salle de bain qui facilite l’installation technique. WC dans la salle de bain avec petite séparation et claustras à mi-hauteur. Aurélie a profité de la cloison de la douche pour créer une niche avec dans la partie basse la trappe à linge salle qui descend vers le RDC, et plus haut, côté lavabo des étagères.
- Des chambres évolutives dans le temps : celle du fils s’adaptera en fonction de ses besoins, la chambre d’ami pourra accueillir un second enfant si besoin et la chambre parentale pourra facilement s’ouvrir vers le futur dressing au-dessus du garage.
- Une zone modulable sur le palier : un coin bureau, un coin lecture ou une zone supplémentaire de rangement.
Nos astuces d’optimisation préférées ?
Le projet d’Aurélie comprend plusieurs astuces d’optimisations pertinentes qu’on adore enseigner à tous nos élèves de l’École HOME. Mentions spéciales pour :
- La colonne avec trappe à linge dans la salle de bain qui permet au linge d’arriver directement dans la buanderie au RDC.
- L’étagère sous pente à hauteur du lit dans la chambre du fils pour décaler le lit de la pente et avoir du rangement à portée de main.
- Les différentes niches aménagées en étagères pour accueillir livres et décoration.
- La petite étagère à faible profondeur à côté de la baignoire pour le shampoing et le gel douche.
Fidèles à notre vision d’une architecture d’intérieur pertinente, ici, les contraintes ne sont pas des obstacles, mais des points de départ : des solutions ingénieuses ont été conçues pour améliorer le confort au quotidien et révéler tout le potentiel du lieu.
Les planches décoration de cette ancien atelier de menuisier devenu un véritable refuge pour toute une famille
Et vous ? Que pensez-vous de ces magnifiques perspectives colorisées ? Quelles sont les idées que vous retenez pour votre futur projet ? Dites-le-nous en commentaire !
Vous souhaitez devenir architecte d’intérieur et acquérir une méthodologie éprouvée en optimisation d’espace ? Vous êtes déjà décorateur, designer ou architecte d’intérieur et vous souhaitez appliquer la méthodologie HOME pour vos futurs projets clients ?
Rejoignez notre formation d’architecte d’intérieur à distance, la première étape pour devenir un architecte d’intérieur HOMER® !
Vous souhaitez transformer un ancien atelier en logement pour vos propres besoins ou pour un investissement locatif ? Parlez-nous tout simplement de votre projet et nous vous mettrons en relation avec un H.O.M.E.R.® qui vous fera un devis sur mesure.

Guide HOME gratuit
Téléchargez le guide H.O.M.E
10 questions à se poser pour réussir son projet et garantir 100% de satisfaction à vos clients !








