Aménager une ancienne dépendance en un T2 chaleureux et fonctionnel, tout en optimisant chaque mètre carré disponible : c’est le défi relevé par Sophie, élève en cours de formation HOMER NINJA au sein de l’école HOME. Sa mission ? Rénover un garage indépendant de 46 m² pour en faire un logement destiné à la location.
Dans ce cas pratique, découvrez toutes les étapes clés pour transformer une dépendance en habitation, depuis l’analyse des besoins des propriétaires jusqu’à la conception d’un avant-projet détaillé. Inspirez-vous d’un projet concret pour optimiser, rénover et valoriser vos propres projets de rénovation !


© Perspectives de Sophie Pasquini, élève architecte d’intérieur formée à l’École HOME
Analyse des besoins et des envies des propriétaires pour transformer une dépendance en habitation
Direction Authezat, dans le Puy-de-Dôme. C’est ici que nos propriétaires ont fait l’acquisition de « La Recluse », une maison bourgeoise du XIXᵉ siècle achetée en viager. S’ils n’ont pas encore accès à la maison principale, ils disposent déjà des dépendances à l’entrée de la propriété.
Après avoir rénové un premier T2 pour de la location longue durée, ils souhaitent aujourd’hui transformer un second espace : un ancien garage indépendant d’environ 46 m² sur deux niveaux, comprenant un petit espace sous combles. Objectif : créer un T2 fonctionnel pour de la location longue durée non meublée.

© Photos de Sophie Pasquini, élève architecte d’intérieur formée à l’École HOME
Le projet présente quelques contraintes techniques, notamment la présence d’amiante dans la toiture, nécessitant une réflexion spécifique sur l’isolation et la rénovation.
Leurs attentes pour ce nouvel espace sont claires :
- Optimiser chaque mètre carré pour une circulation fluide et confortable.
- Créer une vraie entrée, une cuisine équipée conviviale et un espace salon chaleureux.
- Aménager une mezzanine avec une salle d’eau, des WC séparés et une chambre fermée.
- Maximiser la lumière naturelle grâce à de nouvelles ouvertures en toiture.
- Conserver l’authenticité des lieux en valorisant les matériaux existants.

Guide HOME gratuit
Téléchargez le guide H.O.M.E
10 questions à se poser pour réussir son projet et garantir 100% de satisfaction à vos clients !
Les solutions proposées par notre élève architecte d’intérieur formée à la méthodologie HOME
Pour répondre aux attentes des propriétaires tout en respectant les contraintes de cette dépendance de 46 m², Sophie a proposé trois avant-projets sommaires. Chaque proposition mise sur l’optimisation de l’espace, la fluidité de circulation, et la création d’un logement confortable et chaleureux.
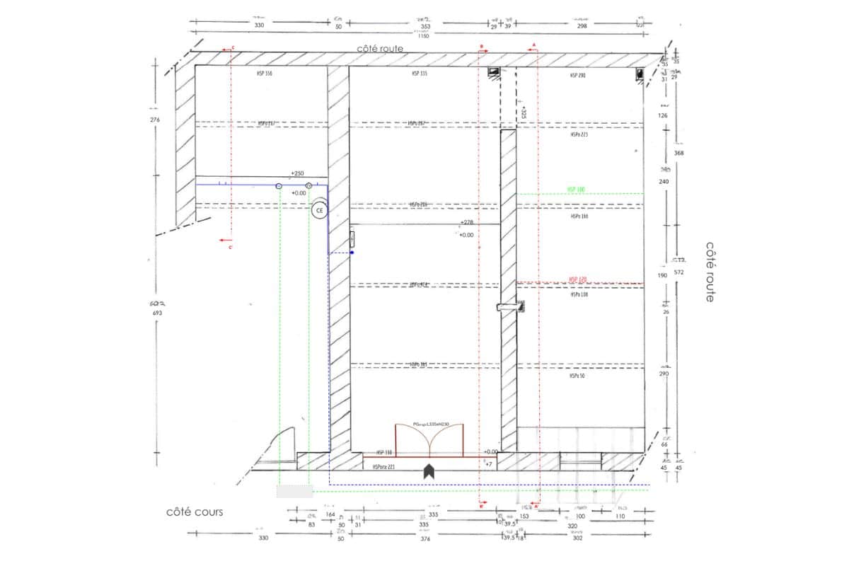
Voici le plan et la coupe de l’état des lieux initial :


© Plan de Sophie Pasquini, élève architecte d’intérieur formée à l’École HOME
Place maintenant au Tour d’horizon des solutions imaginées.
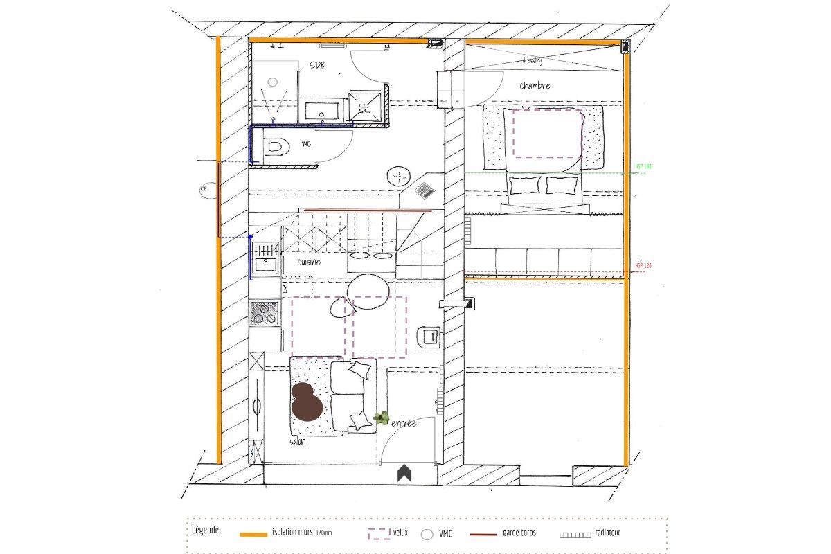
Premier avant-projet : escalier droit et cuisine linéaire

© Plan de Sophie Pasquini, élève architecte d’intérieur formée à l’École HOME
Le premier projet présenté par Sophie propose les aménagements suivants :
- Une entrée marquée, ouvrant sur un espace cuisine linéaire optimisé avec de nombreux rangements et l’intégration d’un lave-vaisselle compact.
- Un salon chaleureux et ouvert, où l’espace est structuré par un escalier droit placé sur le côté pour une circulation naturelle.
- Une mezzanine accueillant une salle d’eau fonctionnelle avec douche 80×140, possibilité d’installer un lave-linge, et un WC séparé.
- Une chambre sous combles avec un lit 140×200, des rangements sous pente, et un petit espace bureau intégré sur le palier.
- Installation de velux pour maximiser l’apport de lumière naturelle dans la pièce de vie.
Parmi les points forts de ce projet, on retient une circulation fluide entre les espaces, un escalier droit facile d’accès, et une organisation optimisée pour un usage quotidien confortable.
Côté inconvénients, l’entrée donne directement sur le salon, et la configuration compacte du salon pourrait limiter l’installation d’un grand meuble TV.
Deuxième avant-projet : cuisine en L sous escalier

© Plan de Sophie Pasquini, élève architecte d’intérieur formée à l’École HOME
Le deuxième projet imaginé par Sophie mise sur :
- Une cuisine en L placée sous l’escalier, optimisant l’espace et libérant la pièce principale.
- Un espace salon plus spacieux, avec une zone d’entrée marquée visuellement.
- Une mezzanine bien structurée avec une salle d’eau et WC séparés, offrant plus d’intimité.
- Une chambre sous combles aménagée avec une tête de lit toute hauteur et de nombreux rangements intégrés sous pente.
Parmi les points forts de ce projet, on apprécie la définition plus claire des espaces, la facilité de circulation et la présence d’une zone salon plus confortable. L’emplacement du meuble TV est facilité par la configuration.
En revanche, l’absence de rangements dans l’entrée et la nécessité de prévoir des meubles sur mesure sous l’escalier peuvent être des contraintes à anticiper.
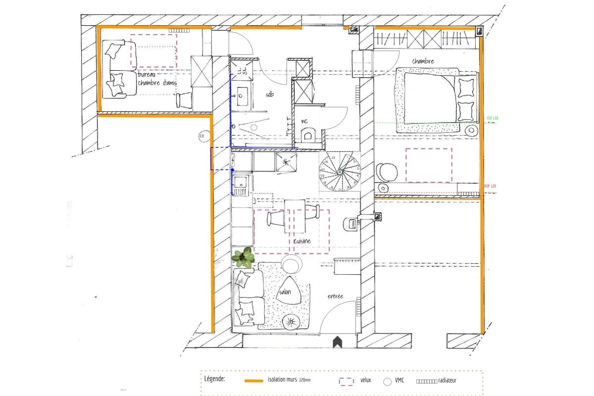
Troisième avant-projet : mezzanine fermée et escalier gain de place

© Plan de Sophie Pasquini, élève architecte d’intérieur formée à l’École HOME
Le troisième projet proposé par Sophie s’oriente vers :
- Une entrée ouverte sur un espace cuisine en L, compact mais fonctionnel.
- Un escalier hélicoïdal gain de place pour libérer l’espace au sol.
- Une mezzanine fermée créant un espace nuit plus intime, avec la possibilité d’aménager un second espace polyvalent (coin TV ou chambre d’appoint).
- Une salle d’eau généreuse avec douche XL (100×140) et rangements intégrés pour le linge et les affaires.
Parmi les points forts de cette version, on retient un aménagement qui privilégie l’intimité, un espace optimisé pour accueillir des invités, et une salle d’eau spacieuse pour un confort maximal.
Côté limites, l’escalier hélicoïdal peut être moins pratique au quotidien, et l’entrée reste à redéfinir pour mieux structurer l’accueil dans le logement.
Du concept à la concrétisation : l’avant-projet détaillé de cette dépendance transformée en T2 pour la location
À l’issue de la présentation des trois avant-projets sommaires, les propriétaires ont affiné leur réflexion et décidé d’orienter leur projet vers de la location courte durée type Airbnb. Un changement d’usage qui a naturellement influencé certains choix d’aménagement pour mieux répondre aux besoins de voyageurs de passage.
Le projet définitif reprend majoritairement la configuration du premier avant-projet, tout en intégrant quelques ajustements issus des autres propositions.

© Plan de Sophie Pasquini, élève architecte d’intérieur formée à l’École HOME
Voici les grandes lignes de l’aménagement validé :
- Entrée optimisée avec un meuble de rangement et un espace fonctionnel pour les manteaux et les chaussures.
- Escalier droit latéral, offrant une circulation fluide et un gain d’espace appréciable dans la pièce principale.
- Cuisine linéaire en fond de pièce, avec de nombreux rangements en partie basse, et une table haute conviviale pouvant accueillir jusqu’à quatre personnes grâce à ses tabourets.
- Espace salon comprenant un canapé deux places, convertible si besoin pour offrir un couchage supplémentaire.
- Mezzanine agencée avec :
- Salle d’eau confortable, équipée d’une grande douche (80×140 cm), d’un meuble vasque compact, d’un sèche-serviettes, et d’un lave-linge.
- WC séparés pour plus de confort.
- Chambre cosy sous combles, accueillant un lit double 140×200, un petit dressing, ainsi qu’un banc pour poser valises et sacs.
- Rangements sous-pente optimisés pour stocker le linge de maison et les effets personnels
- Petit espace bureau, associé à une bibliothèque pour enrichir le confort des séjours.
Pour maximiser la lumière naturelle, deux velux ont été positionnés avec soin, au-dessus de la cuisine et dans la chambre. Un détail essentiel pour offrir un lieu lumineux et agréable à vivre, tout au long de l’année.
Notre astuce d’optimisation préférée ?
L’aménagement de la chambre. Pensée pour des voyageurs de passage, elle combine des rangements malins pour stocker tout le linge de maison nécessaire à la location courte durée, et un petit dressing associé à un banc pratique pour poser sa valise. Un aménagement simple, mais indispensable pour offrir confort et praticité dès l’arrivée !
Une des nombreuses astuces d’agencement pertinent, comme on les enseigne à l’École H.O.M.E.
Les planches décoration de cette ancienne dépendance devenue un locatif cosy et fonctionnel
Et vous ? Que pensez-vous de ces magnifiques perspectives colorisées ? Quelles sont les idées que vous retenez pour votre futur projet ? Dites-le-nous en commentaire !
Vous souhaitez devenir architecte d’intérieur et acquérir une méthodologie éprouvée en optimisation d’espace ? Vous êtes déjà décorateur, designer ou architecte d’intérieur et vous souhaitez appliquer la méthodologie HOME pour vos futurs projets clients ?
Rejoignez notre formation d’architecte d’intérieur à distance, la première étape pour devenir un architecte d’intérieur HOMER® !
Vous souhaitez transformer une dépendance en habitation ? Parlez-nous tout simplement de votre projet et nous vous mettrons en relation avec un H.O.M.E.R.® qui vous fera un devis sur mesure.







