Sur la côte sauvage de l’Île d’Yeu, Simone possède une maison familiale datant de 1911. Une demeure pleine d’histoire, habitée uniquement à la belle saison, mais dont les charges sont devenues trop lourdes avec le temps.
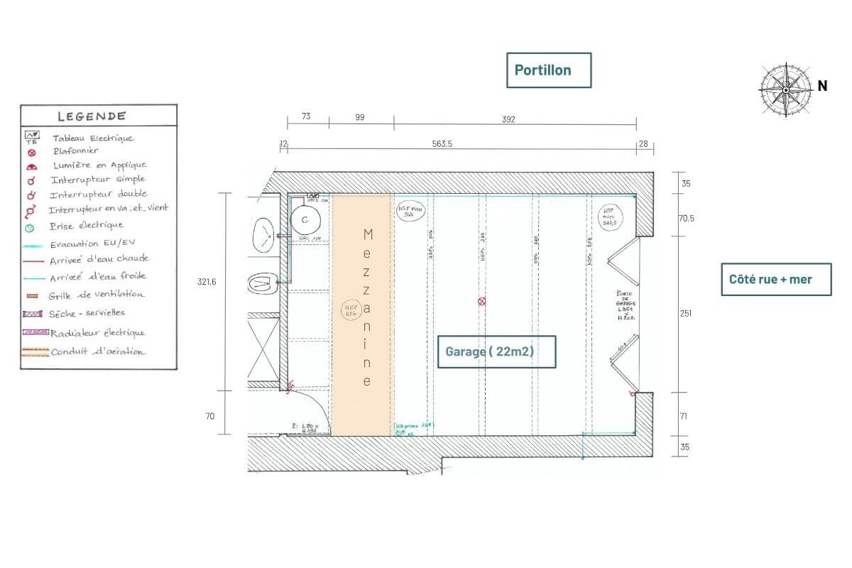
L’attachement au lieu est fort, vendre n’est pas envisagé. La réflexion s’oriente donc naturellement vers une valorisation de l’existant : exploiter le garage de 22 m² avec mezzanine pour créer un studio de location longue durée.
C’est dans ce contexte qu’Alice, élève en formation HOMER NINJA à l’École HOME, travaille sur la transformation de ce volume en logement fonctionnel. L’enjeu : aménager une petite surface, composer avec une mezzanine à hauteur limitée, intégrer les contraintes techniques et respecter un budget global de 30 000 €.

Archives de 1965, © Visuels Alice Miniac, élève architecte d’intérieur formée à l’École HOME
Analyse des besoins et du potentiel existant pour transformer un garage en studio habitable
Le futur locataire est défini avec précision : une personne seule, active, âgée de 25 à 45 ans . En échange d’un loyer modéré, cette personne participera à la vie du lieu en assurant un service d'entretien sommaire du jardin, une aération régulière de la maison et un ménage occasionnel.
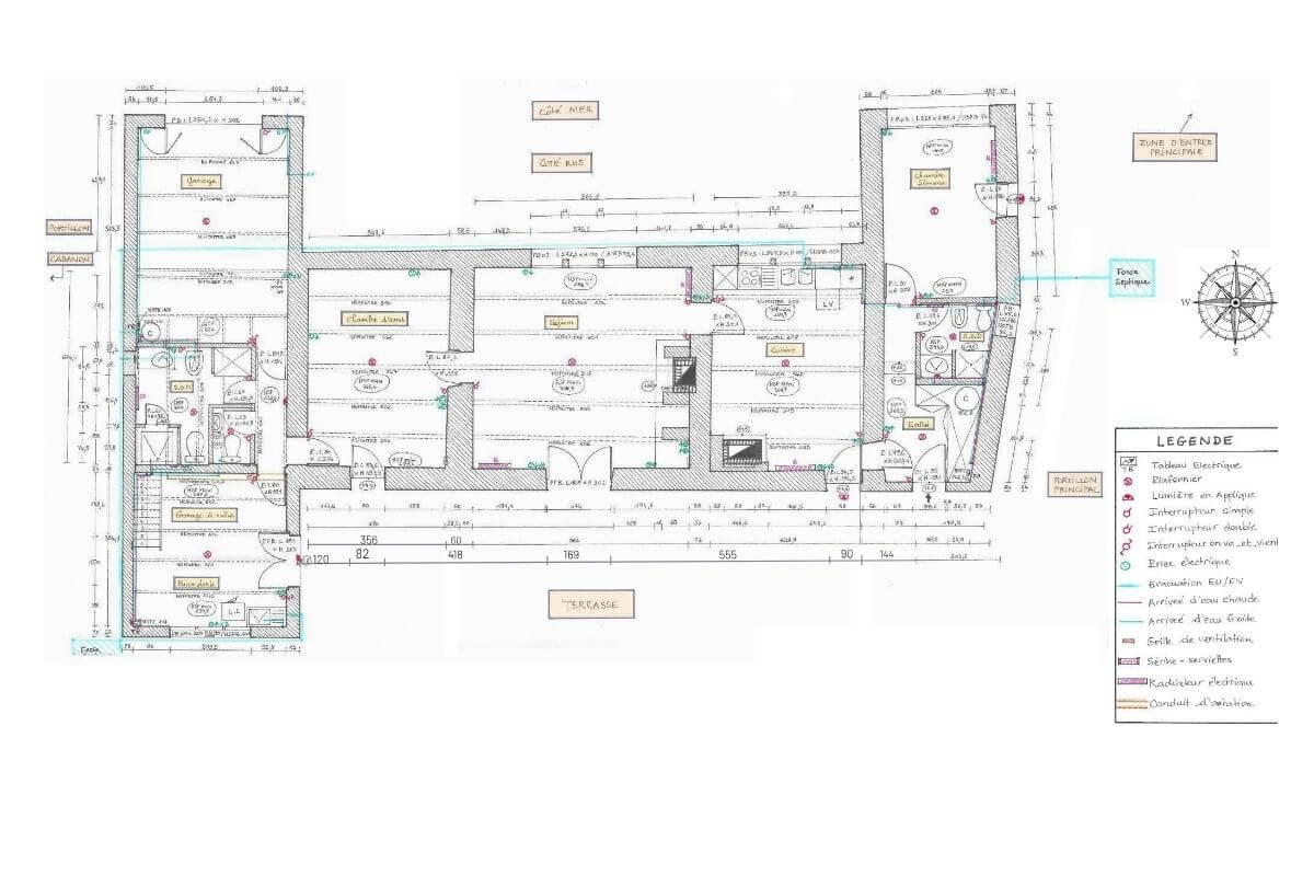
L’analyse du plan met en évidence trois zones distinctes : une zone lumineuse tournée vers la mer, une partie en second jour et un secteur plus technique marqué par la présence des réseaux. Chaque fonction devra être positionnée avec cohérence.
Autre donnée déterminante : l’intégration de 12 cm d’isolation intérieure, qui vient réduire la surface exploitable et renforcer l’exigence d’optimisation.

© Visuels de Alice Miniac, élève architecte d’intérieur formée à l’École HOME
Le cahier des charges est précis, le logement doit intégrer :
- Une salle de bain avec douche, vasque, WC et sèche-serviettes.
- Un lave-linge.
- Un grand placard avec penderie.
- Un coin bureau.
- Un lit double 140 x 190 cm.
- Un canapé.
- Une cuisine équipée.
- Un espace repas pour trois personnes.
- Un escalier droit.
- Un radiateur électrique.

Guide HOME gratuit
Téléchargez le guide H.O.M.E
10 questions à se poser pour réussir son projet et garantir 100% de satisfaction à vos clients !
Trois propositions d’aménagement pour transformer ce garage en studio fonctionnel
À partir de l’état des lieux et du cahier des charges, Alice a engagé une véritable réflexion de planification de l’espace. Transformer un garage en pièce habitable ne se résume pas à installer quelques meubles, chaque idée d’aménagement doit concilier confort, circulation et faisabilité technique.
Trois scénarios ont donc été explorés pour structurer intelligemment la transformation de ce garage en habitation.
Mais, voyons déjà le plan d’état des lieux initial :



© Visuels de Alice Miniac, élève architecte d’intérieur formée à l’École HOME
Place maintenant au Tour d’horizon des solutions imaginées.
Première option : préserver la mezzanine existante et ouvrir la pièce de vie


© Perspectives de Alice Miniac, élève architecte d’intérieur formée à l’École HOME
Dans cette première proposition, Alice choisit de conserver la mezzanine actuelle. L’objectif est de limiter les travaux structurels et de maîtriser le budget de rénovation tout en optimisant la surface au sol.
L’espace salon est ouvert pour donner une sensation de volume. Le coin repas s’organise face à la lumière naturelle. Le bureau trouve sa place sous l’escalier, avec des rangements intégrés. Cette organisation privilégie la fluidité et la perception d’un espace habitable plus généreux.
En mezzanine, un couchage une place est prévu, avec la possibilité d’un matelas sur mesure afin d’exploiter au mieux la hauteur disponible.
Les points forts de cette solution :
- Une pièce de vie aérée et lumineuse.
- Un aménagement de garage simple à mettre en œuvre.
- Des travaux maîtrisés sans modification importante de la structure.
Les limites identifiées :
- L’absence de véritable chambre double.
- Un bureau sans vue directe sur l’extérieur.
- Une aménagement simple au budget maîtrisé, en misant sur l’ouverture du volume existant plutôt que sur la modification du bâti.
Deuxième option : agrandir la mezzanine pour créer un vrai espace nuit double


© Perspectives de Alice Miniac, élève architecte d’intérieur formée à l’École HOME
Cette seconde proposition engage davantage la transformation du garage. La mezzanine est agrandie afin d’installer un lit standard 140 x 190 cm. L’objectif est clair : offrir un confort comparable à celui d’un appartement, malgré la petite surface.
L’entrée est structurée avec un placard et une verrière. Le bureau bénéficie d’une vue sur l’extérieur. La salle d’eau gagne en qualité d’usage, tandis que les rangements sous pente optimisent la surface restante.
Ce scénario suppose davantage de travaux, notamment sur les murs et la structure de la mezzanine, mais il améliore nettement le confort global.
Les points forts :
- Une vraie chambre en mezzanine.
- Une organisation plus aboutie de l’accueil et des circulations.
- Une meilleure valorisation de la lumière naturelle.
La limite principale :
- Un espace salon légèrement réduit.
Cette proposition renforce clairement le confort locatif, au prix d’une intervention plus marquée sur la mezzanine.
Troisième option : optimiser la cuisine et structurer le logement autour de la vue


© Perspectives de Alice Miniac, élève architecte d’intérieur formée à l’École HOME
Dans cette troisième piste, l’accent est mis sur la relation à l’extérieur et la qualité d’usage de la cuisine. La préparation des repas s’effectue face à la fenêtre, valorisant la vue mer et la lumière.
La mezzanine est agrandie au minimum pour accueillir un lit double et des rangements intégrés. La salle de bain propose un plan vasque plus généreux et la possibilité d’intégrer un lave-vaisselle est étudiée. Trois places sont prévues pour le coin repas, conformément au programme.
Les points forts :
- Une cuisine tournée vers l’extérieur.
- Un couchage double intégré.
- Une salle d’eau plus confortable.
Les limites :
- Une entrée moins structurée.
- Un accès au couchage plus contraint.
- Un canapé au format réduit.
Une solution intermédiaire qui explore une autre manière d’aménager un garage en studio, en privilégiant l’usage quotidien et la relation à la vue.
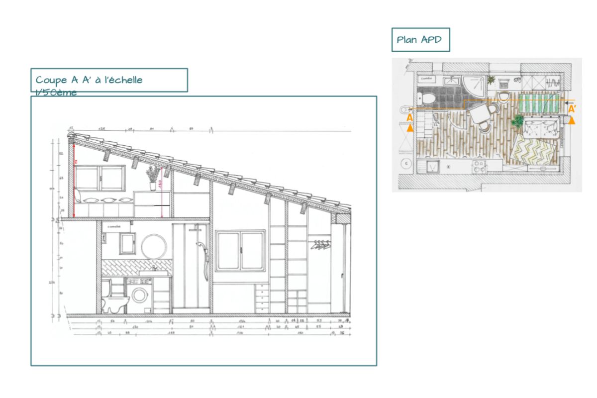
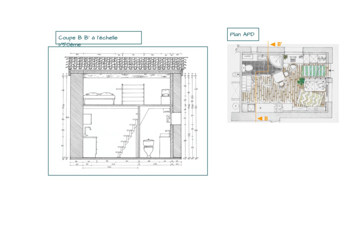
Du concept à la concrétisation : l’avant-projet détaillé de cette transformation de garage en studio vue mer
À l’issue de ces avant-projets sommaires, il a été décidé de poursuivre la transformation en s’appuyant principalement sur la deuxième proposition. L’entrée et le bureau sont conservés, tout en intégrant une contrainte essentielle à la rénovation : les 12 cm d’isolation intérieure, indispensables pour améliorer le confort thermique.

© Perspectives de Alice Miniac, élève architecte d’intérieur formée à l’École HOME
La mezzanine est agrandie du côté du dortoir existant, impliquant un déplacement de cloison au faîtage. Cette intervention structurelle redéfinit l’organisation globale de la surface habitable. Pour gagner de la place sur son emprise, un escalier « à pas japonais » est repositionné. Sur une seule largeur de marche, deux hauteurs de marches peuvent être conçues en convenant une marche par pied. La cuisine est simplifiée en un linéaire efficace, et la salle d’eau optimisée avec l’intégration du lave-linge sous le plan vasque.
Le projet final propose ainsi :
- Une entrée marquée par une verrière, qui structure l’accueil sans fermer l’espace.
- Un escalier en “pas japonais” pour libérer la surface au sol.
- Une cuisine fonctionnelle, pensée pour une mise en œuvre simple et rationnelle.
- Une table pliante permettant d’adapter l’espace repas à l’usage quotidien.
- Une mezzanine agrandie accueillant un lit double 140 x 190 cm et des rangements sous pente.
- Une zone de stockage créée au-dessus de la salle d’eau.
- Un bureau positionné côté lumière naturelle.
Ce projet illustre une transformation de garage menée avec méthode : peu d’espace restant, des travaux ciblés, et une organisation précise pour faire d’un ancien garage un studio locatif de longue durée confortable et fonctionnel.
Nos astuces d’optimisation préférées ?
La création d’un volume de rangement au-dessus de la salle d’eau.
Dans un garage de 22 m² transformé en studio, avec une mezzanine culminant à 120 cm de hauteur sous plafond, la moindre surface compte. Impossible de perdre un espace exploitable.
Plutôt que de subir cette contrainte, Alice l’intègre pleinement dans sa réflexion. En agrandissant la mezzanine et en retravaillant la coupe, elle récupère un volume en hauteur, juste au-dessus de la salle d’eau. Ce nouvel espace devient un rangement discret pour le linge, les valises ou les équipements saisonniers.
Un détail ? Non. Une vraie stratégie d’optimisation.
C’est toute la logique de la méthodologie HOME : analyser, ajuster, transformer… et faire d’une contrainte technique un atout d’aménagement.
Et vous, que pensez-vous de cette transformation ? Est-ce que vous auriez imaginé qu’un garage puisse devenir un studio aussi confortable ?
Vous souhaitez devenir architecte d’intérieur et acquérir une méthodologie éprouvée en optimisation d’espace ? Vous êtes déjà décorateur, designer ou architecte d’intérieur et vous souhaitez appliquer la méthodologie HOME pour vos futurs projets clients ?
Rejoignez notre formation d'architecte d'intérieur à distance, la première étape pour devenir un architecte d'intérieur HOMER® !
Vous souhaitez transformer un garage en logement ? Parlez-nous tout simplement de votre projet et nous vous mettrons en relation avec un H.O.M.E.R.® qui vous fera un devis sur mesure.

Guide HOME gratuit
Téléchargez le guide H.O.M.E
10 questions à se poser pour réussir son projet et garantir 100% de satisfaction à vos clients !







Merci pour cet article très détaillé.