Saviez-vous que la plupart des plans de bâtiments existants contiennent des erreurs ?
Entre les plans “avant construction” qui présentent des écarts avec ce qui a été réellement construit, et les relevés de métré “après construction” qui ne relèvent pas l’existant avec exactitude …
Autant de documents non fiables sur lesquels il est dangereux de concevoir son projet de rénovation.
À l’École H.O.M.E., nous avons fait ce constat depuis longtemps : lorsque nous élèves arrivent avec un “plan d’architecte” pour leur projet cas d’école et qu’on leur demande de refaire un relevé de métré précis, dans 100% des cas (oui, cent pour cent), nous avons constaté des écarts. Parfois, c’est une erreur minime. Mais, il nous est arrivé de constater jusqu’à 1 mètre d’écart relevé en trop, sur lequel l’architecte de nos élèves avait déjà préconçu un avant-projet irréalisable !
Comment est-on arrivé là ?
C’est simple : le relevé de métré IN SITU ne s’enseigne pas, ou s’enseigne de façon trop succinte, dans la plupart des formations.
C’est en partant de ce constat, que nous avons créé depuis 2017, le tout premier cours de l’École H.O.M.E. : un relevé de métré “façon cuisiniste”.
Pourquoi “façon cuisiniste” ? Parce qu’un cuisiniste a besoin d’une précision au millimètre près, et de connaître tous les faux équerrages ou contraintes du bâti qui pourraient gêner la pose de l’agencement lors de la livraison du mobilier fabriqué en sur-mesure.
Nul besoin d’engager un géomètre expert. On a concocté une méthode en 5 étapes, pour passer du statut de "gribouilleur amateur" à celui de "maître ès relevés". Que vous soyez débutant en quête d’une méthodologie éprouvée ou pro chevronné en besoin de rafraîchissement, on vous explique pas à pas (ou plutôt centimètre par centimètre!) de la préparation de vos outils jusqu'à la transformation de vos notes en un plan digne de ce nom.
Étape 1 : Préparer ses outils de mesures (et de dessin !)
Un relevé d’état des lieux réussi, ça commence par des outils bien choisis et adaptés. Voici quelques indispensables à glisser dans votre sac quand vous partez faire un métré :
- Cahier à petits carreaux : Parfait pour gérer “à peu près” les proportions, même si à cette étape, on ne cherche pas à dessiner quelque chose de parfait. Les petits carreaux vous aideront à vous approprier l’échelle de votre esquisse, pour que l’ensemble du bâti à relever rentre sur votre feuille ;-).
- Porte-mine : Précis et facile à effacer, le porte-mine est l’allié des plans bien nets. Et pas de taille-crayon à chercher au fond du sac !
- Stylo 4 couleurs : idéal pour noter des éléments d’électricité ou de plomberie.
- Mètre ruban large et long : Exit les mètres trop fins qui se plient sous leur propre poids. Avec un mètre large, vous pouvez mesurer de grandes distances sans galérer.
- Mètre laser (optionnel) : Pratique pour gagner du temps, surtout sur les grandes longueurs et hauteurs sous plafond. Mais attention, il peut être piégeux. Vérifiez toujours qu’il n’y a pas d’obstacles (comme des poteaux ou du mobilier) qui fausseraient les mesures. Par ailleurs, pour certaines mesures, on préfèrera toujours le mètre ruban !
- Appareil photo (celui de votre smartphone ira très bien) : Immortalisez tout ! Les photos sont essentielles pour vous rappeler les détails, les particularités des lieux quand vous retranscrirez votre métré en un beau plan à l’échelle.
Bien s’équiper, c’est déjà une bonne partie du travail de fait !

Quid des outils numériques qui permettent de scanner la pièce ? Pour cette méthode, on part sur du dessin à la main qui est plus formateur pour appréhender l’espace. Mais, on discute des outils de mesures numériques dans cet article “L’art de la prise de cote en architecture intérieure : outils et conseils pour une précision sans faille”.
Étape 2 : Faire un tour complet de l’habitation
STOP ! Avant de sortir votre mètre, prenez le temps de parcourir les lieux et d'observer. Essayez de faire un tour avec un regard neuf, comme si c’était la première fois que vous y mettiez les pieds. L’idée ? Visualiser l’appartement en vue de dessus.

Les points à bien observer :
- La disposition des pièces : Comment les pièces s’emboîtent-elles les unes avec les autres ? Comprendre l’agencement de l’espace dès le début vous aidera à repérer des optimisations possibles pour la suite.
- La surface au sol : Comment les pièces sont-elles agencées ? Il y a-t’il des rangements intégrés ? Pensez à ouvrir les placards pour voir comment ils occupent l’espace. On y trouve parfois des surprises ! Astuce : si la surface au sol est trop encombrée, observez les plafonds !
- Les éléments techniques : Radiateurs, plomberie (masquée ou apparente), ventilation, prises et interrupteurs… Faites l’inventaire de tout ce qui constitue l’appartement. Ces détails sont souvent ceux qui causent des soucis sur un chantier, alors autant les noter tout de suite.
- La lumière et l’orientation : Où sont les fenêtres ? Quelle est l’exposition ? Y a-t-il des vis-à-vis ou des vues sympas ?
Ce premier tour de l’habitation avec un œil affûté vous permet d’avoir une première appréhension globale de l’espace. On passe maintenant aux choses plus sérieuses !

Guide HOME gratuit
Téléchargez le guide H.O.M.E
10 questions à se poser pour réussir son projet et garantir 100% de satisfaction à vos clients !
Étape 3 : Dessiner le plan sommaire de l’existant
Vous avez une cartographie mentale des lieux ? Parfait !
Ne sortez pas encore votre mètre ! Sortez votre porte-mine et votre cahier à petits carreaux, c’est l’heure d’élaborer un plan sommaire. Le but ici est simple : dessiner à main levée une vue d’ensemble rapide pour noter vos mesures lors de l’étape suivante.
Commencez toujours par la porte d’entrée et parcourez chaque pièce. Petit conseil : dessinez toujours ce que vous avez devant vous et tournez le plan au fur et à mesure.

Regardez bien la volumétrie des pièces du sol au plafond. Notez déjà les éventuels décrochés de murs, poutres ou coffrages.
Observez l’alignement des portes, fenêtres et cloisons. Attention aux faux équerrages, il est très courant que les murs ou cloisons ne soient pas parfaitement en angle droit : particulièrement dans les vieux bâtiments.
Notez l’emplacement exact des portes et fenêtres, et leur sens d’ouverture.
Quand vous tombez sur un placard : ouvrez-le et mettez le nez dedans ! Il est important de repérer s’il est encastré et quelle est sa profondeur, pour savoir où se situe le mur/la cloison.
Repérez aussi les poutres, poteaux, gaines techniques et murs porteurs : ce sont des éléments structurels essentiels à prendre en compte dans le futur aménagement.
Dans la cuisine et les salles d’eau, repérez tout particulièrement les emplacements de plomberie : par où arrive l’eau ? où s’évacue-t-elle ? Notez les emplacements exacts, et repérez comment est ventilée la pièce.

Assurez-vous de repérer également où se situe le tableau électrique et quel est son encombrement. Est-il accessible ? Peut-on envisager un aménagement autour ? S’il n’est pas envisagé de refaire l’électricité de zéro, notez également l’emplacement des prises électriques.
Ce plan sommaire est une esquisse, donc ce n’est pas grave si les proportions ne sont pas exactes, car il ne servira que de prise de notes avant la réalisation d’un vrai plan d'état des lieux à l’échelle. Par contre, il est primordial de bien repérer et noter l’emplacement de tous les éléments techniques !
Étape 4 : Faire le relevé de mesures de chaque pièce en suivant une méthode rigoureuse
Oui ! Il est maintenant temps de sortir le mètre (seulement maintenant), et de passer à l’action : la prise de mesures. Suivez une méthode rigoureuse, et appliquez la pièce par pièce. Procédez toujours dans le sens des aiguilles d’une montre, en partant de la porte d’entrée dans la pièce. Ça vous aide à rester organisé et vous évite de vous emmêler dans les mesures. N’essayez pas de retenir plusieurs cotes avant de noter, c’est le meilleur moyen de faire des erreurs. Pensez toujours : Une cote = je note !
On commence par mesurer la hauteur sous plafond. Pour ça, coincez le bout de votre mètre avec votre pied en bas, et déroulez-le doucement jusqu’au plafond. Simple. Basique. Pour chaque pièce, indiquez : HSP = XX cm.
On s’attaque ensuite aux murs et cloisons. Prenez vos mesures au sol, en partant toujours d’un angle. Et attention : ne vous trompez pas de repère ! La bonne mesure se prend à l’angle de la cloison, pas à celui de la plinthe. Vous verrez, les cloisons standard mesurent souvent 7 cm, mais elles peuvent varier entre 5 cm et 10 cm. Soyez vigilant !

Next, les ouvertures : Faites la différence entre les fenêtres battantes (F), les fenêtres coulissantes (FC), les portes fenêtres battantes (PF) et les portes-fenêtres coulissantes (PFC). Utilisez ces abréviations vous permet de voir d’un coup d'œil le type de fenêtres sans encombrer trop votre dessin. Notez la largeur du cadre et surtout, n’oubliez pas la hauteur sous fenêtre (HSF).
Pour les poutres et coffrages, prenez soin de mesurer la profondeur et la hauteur. Ensuite, les portes : attention à bien prendre la largeur cadre compris et notez la distance par rapport aux cloisons. On continue avec les placards. S’ils sont encastrés, pensez à mesurer non seulement la profondeur de la cloison, mais aussi la largeur intérieure du placard.
Pour la plomberie, rien de mieux qu’une photo pour immortaliser la disposition. En particulier sous l’évier de la cuisine (oui, ici aussi il va falloir plonger la tête dans le placard, mais promis ça vaut vraiment le coup !)
Et dernier point : vérifiez et re-vérifiez vos cotes ! On ne le répètera jamais assez : une erreur de quelques centimètres peut ruiner un projet. Donc prenez le temps de bien mesurer et soyez sûr de prendre TOUTES les cotes nécessaires pour ne pas avoir à revenir plus tard sur place.
Vous voulez savoir les erreurs les plus fréquentes lors d’une prise de cotes ? On vous a listé les pièges à éviter dans notre article de blog dédié à l’art de la prise de cote en architecture intérieure. Comme ça, vous êtes prévenu !

Étape 5 : Transformer le relevé de cotes en un beau plan d’état des lieux à l’échelle
Votre relevé à main levée esquissé sur place, c’est bien, mais ce n’est qu’un brouillon avec plein de notes dans tous les sens… Maintenant, il est temps de le passer au propre ! Ne traînez pas : profitez que tout soit encore frais dans votre mémoire. Sortez votre feuille à petits carreaux, votre porte-mine, et bien sûr, votre kutch. Oui oui, on va faire ça à la main ! Vous en êtes capables, tout comme des milliers de générations d’architectes avant vous. Vous avez votre croquis de base et vos photos sous les yeux ? Parfait. Allons-y !
L’idée, c’est de redessiner le plan à l’échelle, généralement au 1/50e. Mais avant de vous lancer à toute berzingue, faites une petite vérification rapide : additionnez les cotes de la longueur et de la largeur pour vous assurer que tout tiendra sur une feuille A4 ou A3. Eh oui, mieux vaut vérifier avant de se lancer plutôt que de s’arrêter en plein milieu parce que finalement ça ne rentre pas.

Une fois le format validé, on commence par tracer les murs extérieurs : les plus épais, les porteurs. Enchaînez avec les murs intérieurs (porteurs) puis les cloisons. Commencez par les murs et cloisons dont vous êtes sûrs à 100% qu’ils soient droits, et gardez les biscornues ou les angles douteux pour après.
Il est temps d'ajouter les portes et fenêtres. Indiquez le sens d'ouverture des portes, ça peut être crucial pour la suite. Quant aux fenêtres, leur emplacement suffit, mais n’oubliez pas de noter leur hauteur sous fenêtre (surtout si elles sont au-dessus d’un mètre).
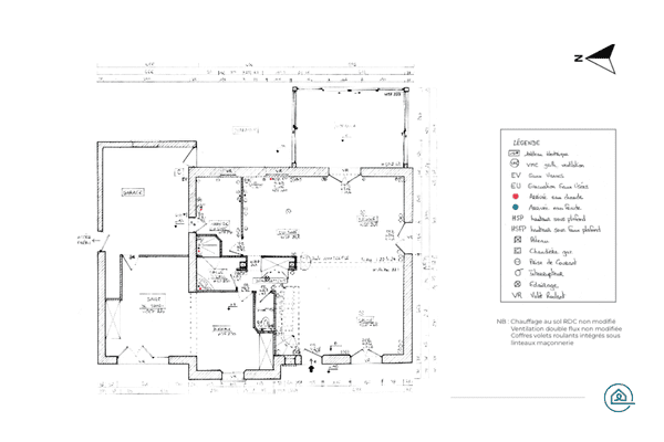
Le meilleur pour la fin : les éléments techniques ! Placard, gaines, radiateurs et toutes autres installations que vous avez repérées lors du relevé. Reportez-vous aux photos prises sur place si besoin pour être sûr de leur positionnement. Pour les poutres, ça se dessine en pointillé sur le plan, et les gaines techniques un rectangle divisé dans sa diagonale par un triangle-rectangle noir, sensé symboliser un vide.

Et pour aller encore plus loin, on a pensé à tout : dans la formation Méthode HOME, on propose un module vidéo complet pour réaliser un métré de pro, étape par étape, et une précieuse check-list à cocher à chaque métré. On y partage toutes nos techniques et astuces pour vérifier l’équerrage des murs, savoir lire un plan d’architecte, et gérer les petites surprises, comme une porte qui n’a pas tout à fait la même dimension d’un côté ou de l’autre de la cloison. Ce module guide les apprentis HOMERS® (architectes d’intérieur spécialistes de l’optimisation d’espace de l’habitat, formés à la méthodologie H.O.M.E.), à savoir exactement quoi mesurer et comment coter – avec ou sans cadre, et surtout pourquoi.
Côté outils, on a conçu des checklists détaillées pour chaque étape du projet, incluant celle de la transformation du plan brouillon en superbe plan d’état des lieux pour être sûr de ne rien oublier : un vrai coup de pouce pour peaufiner vos relevés et gagner en confiance !
Ces outils permettent aux architectes d’intérieur que l’on forme, de pouvoir travailler des projets fiables et de gagner la confiance des artisans avec lesquels ils travaillent.
En revanche, il y a un risque réel à adopter notre méthodologie : ne plus supporter de travailler avec un professionnel qui n’y a pas été formé, et qui souhaite collaborer avec vous sur la base d’un plan qui manque de précision !
C’est pour cette raison que nos anciens élèves font systématiquement appel à un membre du Réseau HOMER® lorsqu’ils manquent de temps ou qu’ils ont besoin d’un relevé de métré précis pour un client qui se situe dans une région éloignée.

PS : pourquoi réaliser un plan à la main ?
Tout simplement parce que notre cerveau s’approprie bien mieux la traduction d’un espace et d’un volume sur un plan, lorsqu’il a participé à sa construction sans aucun filtre de logiciel : le chemin le plus direct entre le cerveau et le plan est bel et bien le stylo. Une fois cette maîtrise acquise, on pourra passer aux logiciels… ou décider de rester 100% à la main, comme le font de plus en plus d’architectes et d’architectes d’intérieur qui souhaitent s’éloigner des écrans et reprendre le contrôle de leur métier-passion.
Alors : envie de continuer le projet à la main, même à l’étape de la 3D ? On vous conseille cette vidéo qui vous présente un outil magique et gratuit pour faire une 3D à la main, même quand on est super débutant !
Et pour maîtriser ces compétences précieuses qui font un BON architecte d’intérieur recommandé par les clients et les artisans, rejoignez notre formation Méthode HOME. Découvrez nos fondamentaux, nos outils, et apprenez notre méthodologie unique d’optimisation de l’espace de l’habitat au service de l’humain.


0 commentaire